市営鷹之橋住宅の配置図と間取り図
更新日:2024年11月26日
ページID: 5138
配置図

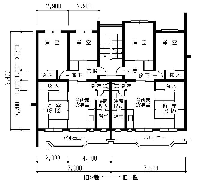
間取り図

ガスの種類は都市ガスです。
浴槽(シャワー付)は設置してあります。
- この記事に関するお問い合わせ先
-
建設部 建築課 開発係
小牧市役所 東庁舎1階
電話番号:0568-76-1194 ファクス番号:0568-76-1144
更新日:2024年11月26日
ガスの種類は都市ガスです。
浴槽(シャワー付)は設置してあります。
建設部 建築課 開発係
小牧市役所 東庁舎1階
電話番号:0568-76-1194 ファクス番号:0568-76-1144